化料器
產品分類: 酸槽儲罐水箱
化hua料liao器qi是shi無wu錫xi泛fan普pu環huan保bao自zi主zhu研yan發fa的de一yi款kuan新xin型xing塑su料liao防fang腐fu設she備bei,主zhu要yao用yong於yu配pei套tao我wo公gong司si的de二er氧yang化hua氯lv發fa生sheng器qi,二er氧yang化hua氯lv發fa生sheng器qi用yong到dao氯lv酸suan鈉na和he鹽yan酸suan兩liang種zhong原yuan料liao。
訂購熱線:133 7621 7639
立即谘詢化料器產品簡介
無錫泛普環保有限公司是一家塑料防腐設備製造企業,化料器是(shi)無(wu)錫(xi)泛(fan)普(pu)公(gong)司(si)自(zi)主(zhu)研(yan)發(fa)的(de)一(yi)款(kuan)新(xin)型(xing)塑(su)料(liao)防(fang)腐(fu)設(she)備(bei),主(zhu)要(yao)用(yong)於(yu)配(pei)套(tao)我(wo)公(gong)司(si)的(de)二(er)氧(yang)化(hua)氯(lv)發(fa)生(sheng)器(qi),二(er)氧(yang)化(hua)氯(lv)發(fa)生(sheng)器(qi)用(yong)到(dao)氯(lv)酸(suan)鈉(na)和(he)鹽(yan)酸(suan)兩(liang)種(zhong)原(yuan)料(liao),由(you)於(yu)氯(lv)酸(suan)鈉(na)溶(rong)液(ye)不(bu)方(fang)便(bian)運(yun)輸(shu),采(cai)用(yong)固(gu)體(ti)氯(lv)酸(suan)鈉(na)粉(fen)均(jun)勻(yun)溶(rong)解(jie)成(cheng)液(ye)體(ti)藥(yao)劑(ji),這(zhe)個(ge)時(shi)候(hou)化(hua)料(liao)器(qi)是(shi)必(bi)備(bei)的(de)設(she)備(bei)。
按照二氧化氯發生器的原料和製備工藝的不同,無錫泛普主要應用氯酸鈉法和亞氯酸鈉法來製備二氧化氯,其中主要是氯酸鈉法。
氯酸鈉法通常以氯酸鈉和鹽酸為原料進行反應,所需的氯酸鈉和鹽酸分別為濃度33%和31%的溶液。由於氯酸鈉溶液運輸不便,需要在工作現場將固體氯酸鈉藥粉溶解成33%氯酸鈉溶液,化料器便是實現這一功能的設備。而且它操作簡單,方便,效率高,成本低。
化料器工作原理
化(hua)料(liao)器(qi)的(de)工(gong)作(zuo)原(yuan)理(li)是(shi)利(li)用(yong)漩(xuan)渦(wo)攪(jiao)拌(ban)原(yuan)理(li),采(cai)用(yong)動(dong)力(li)水(shui)經(jing)特(te)殊(shu)設(she)計(ji)在(zai)容(rong)器(qi)中(zhong)形(xing)成(cheng)漩(xuan)渦(wo),達(da)到(dao)溶(rong)解(jie)固(gu)體(ti)原(yuan)料(liao)的(de)目(mu)的(de)。該(gai)方(fang)法(fa)簡(jian)單(dan)實(shi)用(yong),用(yong)一(yi)台(tai)泵(beng)既(ji)可(ke)溶(rong)解(jie)原(yuan)料(liao),又(you)可(ke)輸(shu)送(song)溶(rong)解(jie)後(hou)的(de)液(ye)體(ti)。
無錫泛普環保有限公司生產的化料器是屬於塑料防腐設備的一種,化料器集成了化料器罐體、化料防腐泵、UPVC管道和防腐底座。(如下圖所示)。
原水從進水口A注入罐體後,關閉閥門2,打開3,啟動泵P,再把氯酸鈉藥粉緩慢倒入罐體中,抽動液體進行混合。混合好後,關閉閥門1,3,打開2,通過泵P將混合好的溶液抽到儲罐中。
如果暫時不用設備,從進水口A注入清水,關閉閥門2,打開3,通過泵P清洗罐底,防止氯酸鈉在罐底結塊。
化料器技術參數
| 型號 | FAP-250 | FAP-500 | FAP-1000 |
| 最大容量(L) | 250 | 500 | 1000 |
| 泵的型號 | 102 | 102 | 101 |
| 攪拌電機的輸出功率(KW) | 1.5 | 1.5 | 4 |
| 電壓/頻率 | 380v,50Hz | ||
| 材質 | PVC | ||
化料器外形尺寸
| 型號 | B1 | B2 | L | H1 | H2 | H3 |
| FAP-250 | 820 | 630 | 1800 | 1110 | 1010 | 600 |
| FAP-500 | 1000 | 840 | 2000 | 1110 | 1010 | 600 |
| FAP-1000 | 1200 | 1070 | 2200 | 1310 | 1210 | 600 |
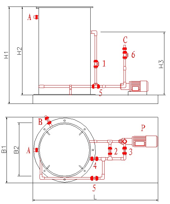
化料器連接的管道示意
- A:連接進水管
- B:連接泄流管
- C:連接抽液管
化料器的安裝說明
- 這套設備已經安放在一個10高的水平基座上,根據現場情況,依照上圖連接進水管、泄流管和抽液管。
- 將泵接上電源。
化料器溶藥操作步驟
- 關閉閥門2、6,打開1、3、4、5。關閉泄流口B。
- 通過進水管A將水注入罐體中,進水量對應於相應的藥量。見下表。
| 型號 | 待攪拌的藥量(kg) | 注入水量(L) | 注入水刻度(M) |
| FAP-2-250 | 50 | 100 | 0.4 |
| 100 | 200 | 0.7 | |
| FAP-2-500 | 100 | 200 | 0.4 |
| 150 | 300 | 0.6 | |
| 200 | 600 | 0.8 |
例如:FAP-250型,投加50公斤的氯酸鈉時,需注入的水量為(50/33%)-50=100公斤,即100升,根據250型的底麵積,得出的水的高度是0.4米。
- 關閉閥門5,開啟泵P。
- 移開蓋子,緩緩投加待溶解藥劑量的一半,如FAP-250型先投加25公斤固體氯酸鈉藥粉。再蓋好蓋子進行初步攪拌5-10分鍾。
- 打開閥門5,再運行10分鍾。攪拌均勻後,關閉泵P。
- 再投加剩餘藥劑,重複第3-5步驟,直至達到表中所需藥劑量。
- 向儲罐抽藥:關閉閥門1、3,打開2、6,然後開啟泵P,將溶液通過抽液管C輸送到氯酸鈉儲罐中。
注:如果氯酸鈉結塊,需用木錘將之敲成粉末,必須用木錘,而不是鐵錘,因為鐵錘與氯酸鈉猛烈撞擊能產生爆炸。
化料器如何清洗
- 關閉閥門2、6,打開1、3、4、5。關閉泄流口B。
- 通過進水管A將水注入罐體中,進水高度約為0.2~0.3米。
- 開啟泵P,運行10分鍾。停止運行。
- 打開泄流口B,放幹清洗水。
- 移開蓋子,如底部仍有氯酸鈉結晶,重複第1-5步驟,直至達到底部無氯酸鈉結塊。
- 2023-02-21無錫PP塑料水箱加工
- 2023-02-17pp堿洗塔的用途是什麼
- 2023-02-1510000m³/h風量噴淋塔直徑做多大?
- 2023-02-14什麼是酸霧吸收器
- 2023-02-13pp噴淋塔使用壽命多少年?
- 2023-02-13活性炭吸附箱炭層厚度要求
- 2023-02-11噴淋塔配套風機如何選擇?
- 2023-02-11Falasuye法拉pp塑料板材加工
- 2023-02-11硫酸儲罐吸濕器如何安裝?
- 2023-02-11上海蘇州PP塑料板雕刻開孔焊接加工
- 2023-02-11一款不用水噴淋的酸霧吸收器
- 2023-01-19什麼是噴淋塔
- 2023-01-19噴淋塔結構說明
- 2023-01-18pp塑料防腐水箱加工
- 2023-01-16氨氣吸收塔用哪種材質
- 2023-01-16如何定製pp吸風罩
-
實驗室尾氣如何處理
實驗室尾氣如何處理?泛普環保專業從事實驗室尾氣處理,提供實驗室尾氣處理的方案設計、設備製造及安裝服務。實驗室尾氣處理主要分析尾氣收集方式、尾氣的汙染因 -
通風櫥酸氣處理方案
無wu錫xi泛fan普pu環huan保bao專zhuan業ye從cong事shi實shi驗yan室shi通tong風feng櫥chu酸suan氣qi處chu理li,生sheng產chan通tong風feng櫥chu酸suan氣qi處chu理li設she備bei,通tong過guo安an裝zhuang小xiao型xing通tong風feng櫥chu酸suan氣qi處chu理li設she備bei解jie決jue通tong風feng櫥chu酸suan氣qi處chu理li問wen題ti,解jie決jue了le實shi驗yan過guo程cheng中zhong通tong風feng櫥chu內nei酸suan氣qi揮hui -
實驗室廢氣處理
無錫泛普環保有限公司專業從事實驗室廢氣處理,提供實驗室廢氣處理方案設計、廢氣處理設備製作以及實驗室廢氣處理配套PP風管安裝,實驗室廢氣主要來自通風櫥、 -
汙水池加蓋廢氣收集處理
無(wu)錫(xi)泛(fan)普(pu)環(huan)保(bao)有(you)限(xian)公(gong)司(si)專(zhuan)業(ye)從(cong)事(shi)汙(wu)水(shui)池(chi)加(jia)蓋(gai)廢(fei)氣(qi)收(shou)集(ji)處(chu)理(li),對(dui)汙(wu)水(shui)處(chu)理(li)區(qu)域(yu)加(jia)蓋(gai)密(mi)封(feng)廢(fei)氣(qi)收(shou)集(ji)後(hou)通(tong)過(guo)風(feng)機(ji)引(yin)到(dao)廢(fei)氣(qi)淨(jing)化(hua)塔(ta)內(nei)處(chu)理(li)後(hou)排(pai)放(fang),泛(fan)普(pu)環(huan)保(bao)提(ti)供(gong)汙(wu)水(shui)池(chi)加(jia)蓋(gai)廢(fei)氣(qi)收(shou)集(ji) -
皮革加工車間廢氣處理
無錫泛普環保有限公司采用噴淋塔及生物除臭滴濾塔的工藝解決皮革加工車間惡臭廢氣,皮革加工車間惡臭主要來源於皮毛庫,水場及汙水處理站,主要廢氣為硫化氫,氨 -
酸洗廢氣處理
無錫泛普環保有限公司專業提供酸洗廢氣處理,酸洗廢氣處理首選需要計算風量,根據酸洗廢氣的風量來設計噴淋塔、PP管路以及風機和加藥係統,酸洗廢氣處理煙囪需 -
硫酸霧廢氣處理
無錫泛普環保有限公司專業從事硫酸霧廢氣處理,采用水噴淋加藥吸收原理,在噴淋塔的填料層噴入一定濃度的堿溶液,發生酸堿中和反應,處理硫酸酸霧廢氣後達標排放 -
硝酸霧黃煙處理
無錫泛普環保有限公司專業從事硝酸霧黃煙處理,采用噴淋塔原理,前端設計pp吸風罩收集硝酸霧黃煙,通過風機將硝酸霧黃煙廢氣引到噴淋塔內加藥處理,硝酸霧黃煙
- 無錫泛普環保有限公司
- 電話:133 7621 7639
- 傳真:0510-8783 1051
- 郵箱:
- 地址:無錫市宜興市高塍鎮環保城11幢16號











