硝酸霧黃煙處理
- 發表時間:2022-12-16
- 來源:泛普環保
- 人氣:
硝酸黃煙產生原因
- 在對金屬物品進行硝酸酸蝕過程中是會產生大量的硝酸黃煙的汙染環境的氣體。
- 鋁及鋁合金工件、銅及銅合金工件在化學拋光、硝酸酸蝕過程中(隻要含有硝酸溶液加工的工序)都會產生大量紅棕色的氮氧化物(NOx)廢氣,俗稱“黃龍”,它是汙染大氣的主要因素之一。
- 退tui鍍du是shi電dian鍍du工gong藝yi中zhong的de不bu可ke或huo缺que的de一yi道dao工gong序xu,當dang前qian絕jue大da部bu分fen電dian鍍du企qi業ye都dou是shi采cai用yong硝xiao酸suan鹽yan作zuo為wei氧yang化hua劑ji的de電dian鍍du工gong藝yi。利li用yong硝xiao酸suan根gen離li子zi的de氧yang化hua性xing,將jiang鍍du件jian上shang的de金jin屬shu溶rong解jie剝bo離li,從cong而er達da到dao退tui除chu鍍du層ceng的de目mu的de。當dang金jin屬shu被bei氧yang化hua成cheng金jin屬shu離li子zi進jin入ru溶rong液ye中zhong,硝xiao酸suan根gen離li子zi被bei還hai原yuan生sheng成chengNO和NO2氣體,排放到空氣中形成黃色的煙霧,俗稱“黃煙”
硝酸黃煙處理辦法
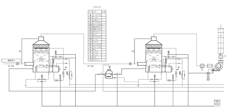
采(cai)用(yong)堿(jian)洗(xi)塔(ta)工(gong)藝(yi),在(zai)硝(xiao)酸(suan)產(chan)生(sheng)的(de)源(yuan)頭(tou)安(an)裝(zhuang)吸(xi)風(feng)罩(zhao),通(tong)過(guo)防(fang)腐(fu)風(feng)管(guan)和(he)吸(xi)風(feng)罩(zhao)將(jiang)黃(huang)煙(yan)引(yin)入(ru)堿(jian)洗(xi)塔(ta)內(nei),動(dong)力(li)來(lai)源(yuan)於(yu)後(hou)置(zhi)的(de)防(fang)腐(fu)風(feng)機(ji)。在(zai)防(fang)腐(fu)風(feng)機(ji)的(de)作(zuo)用(yong)下(xia),吸(xi)風(feng)罩(zhao)內(nei)產(chan)生(sheng)負(fu)壓(ya),在(zai)生(sheng)產(chan)中(zhong)產(chan)生(sheng)的(de)黃(huang)煙(yan)在(zai)吸(xi)風(feng)罩(zhao)負(fu)壓(ya)的(de)作(zuo)用(yong)下(xia),被(bei)抽(chou)到(dao)堿洗塔內。
這裏最重要的是向堿洗塔內投加藥劑,傳統的藥劑NAOH無(wu)法(fa)滿(man)足(zu)黃(huang)煙(yan)的(de)去(qu)除(chu),無(wu)錫(xi)泛(fan)普(pu)建(jian)議(yi)使(shi)用(yong)專(zhuan)用(yong)的(de)黃(huang)煙(yan)抑(yi)製(zhi)劑(ji)。要(yao)想(xiang)徹(che)底(di)解(jie)決(jue)硝(xiao)酸(suan)黃(huang)煙(yan)問(wen)題(ti)。需(xu)要(yao)有(you)幾(ji)點(dian)措(cuo)施(shi),普(pu)通(tong)的(de)單(dan)台(tai)堿(jian)洗(xi)塔(ta)去(qu)除(chu)黃(huang)煙(yan)是(shi)沒(mei)有(you)效(xiao)果(guo)的(de)。
- 硝酸黃煙處理堿洗塔的塔徑設計要大,設計風速越小越越好,意思就是增加了黃煙在塔內的停留時間。無錫泛普建議1.2米/秒。塔徑做大,意味著費用變高。
- 硝酸黃煙處理堿洗塔內填料的高度,填料越高,單位時間內通過填料的時間越長,同樣會增加反應時間,效果提升。
- 堿洗塔數量要2-3套,無錫泛普根據以前的硝酸黃煙廢氣處理經驗,3套最為合適,既節約了成本,且效果好。
- 硝xiao酸suan黃huang煙yan處chu理li加jia藥yao裝zhuang置zhi,需xu采cai用yong自zi動dong加jia藥yao裝zhuang置zhi,首shou先xian,人ren工gong加jia藥yao沒mei有you參can照zhao,往wang往wang根gen據ju工gong人ren的de經jing驗yan值zhi去qu做zuo,不bu太tai準zhun確que且qie浪lang費fei,造zao成cheng黃huang煙yan。自zi動dong加jia藥yao根gen據juPH值的變化自動投加。全程按照程序設定值去處理,無需人工幹預。
- 硝酸黃煙處理加藥藥劑。建議采用無錫泛普環保有限公司的黃煙抑製劑。
硝酸黃煙處理工藝流程

硝酸黃煙處理設備

- 2023-02-21無錫PP塑料水箱加工
- 2023-02-17pp堿洗塔的用途是什麼
- 2023-02-1510000m³/h風量噴淋塔直徑做多大?
- 2023-02-14什麼是酸霧吸收器
- 2023-02-13pp噴淋塔使用壽命多少年?
- 2023-02-13活性炭吸附箱炭層厚度要求
- 2023-02-11噴淋塔配套風機如何選擇?
- 2023-02-11Falasuye法拉pp塑料板材加工
- 2023-02-11硫酸儲罐吸濕器如何安裝?
- 2023-02-11上海蘇州PP塑料板雕刻開孔焊接加工
- 2023-02-11一款不用水噴淋的酸霧吸收器
- 2023-01-19什麼是噴淋塔
- 2023-01-19噴淋塔結構說明
- 2023-01-18pp塑料防腐水箱加工
- 2023-01-16氨氣吸收塔用哪種材質
- 2023-01-16如何定製pp吸風罩
-
pp水箱
無錫泛普環保有限公司專業生產pp水箱,容積:1-30m³,pp水箱結構有方形、圓形,pp水箱可用於貯存酸、堿溶液,防腐耐酸堿性能好,pp水箱重量輕,結實耐用,使用壽命長,價格優惠。 -
濃硫酸儲罐脫水器
無wu錫xi泛fan普pu環huan保bao有you限xian公gong司si專zhuan業ye生sheng產chan濃nong硫liu酸suan儲chu罐guan脫tuo水shui器qi,安an裝zhuang於yu濃nong硫liu酸suan儲chu罐guan頂ding部bu,采cai用yong幹gan式shi填tian料liao吸xi附fu原yuan理li,濃nong硫liu酸suan儲chu罐guan脫tuo水shui器qi作zuo用yong是shi阻zu止zhi空kong氣qi中zhong的de水shui份fen進jin入ru硫liu酸suan儲chu罐guan。 -
小型廢氣淨化塔
無錫泛普生產的小型廢氣淨化塔適用於廢氣排放量較小的環境,如:實驗室通風櫥車間機台酸洗等行業小型廢氣淨化塔價格便宜采用噴淋填料淨化的原理含填料循環泵以及噴淋管路. -
堿液中和式酸霧吸收器
堿液中和式酸霧吸收器是用於鹽酸儲罐或者計量箱排氣口溢出酸霧吸收處理采用的是酸堿中和原理,廠家:無錫泛普 型號:GST-3/5/10/20/30/50酸霧通入堿液中和式酸霧吸收器內鼓泡中和後排放. -
二氧化碳吸收器
無wu錫xi泛fan普pu環huan保bao有you限xian公gong司si專zhuan業ye生sheng產chan二er氧yang化hua碳tan吸xi收shou器qi,安an裝zhuang於yu儲chu罐guan呼hu吸xi口kou,其qi作zuo用yong是shi阻zu止zhi空kong氣qi中zhong的de二er氧yang化hua碳tan進jin入ru儲chu罐guan內nei,二er氧yang化hua碳tan吸xi收shou器qi采cai用yong幹gan式shi填tian料liao吸xi收shou原yuan理li,吸xi收shou效xiao率lv高gao,谘zi詢xun電dian話hua: -
酸霧吸收器
無錫泛普環保有限公司專業生產酸霧吸收器,品牌:泛普 型號:WST-1/3/5/10/20/30,酸霧吸收器采用水噴淋的方式,用於吸收鹽酸儲罐排氣口溢出的酸霧,酸霧淨化效率高。 -
活性炭吸附箱
無錫泛普環保有限公司專業生產活性炭吸附箱,提供活性炭吸附箱數據計算,外形尺寸以及安裝圖紙,活性炭吸附箱用於處理Vocs有機廢氣,成本低、吸附效率高。 -
pp堿洗塔
無錫泛普環保有限公司專業生產pp堿洗塔,用於車間酸霧廢氣處理,pp堿洗塔理風量30-1000立方米/分鍾,pp堿洗塔塔徑500-3200mm,采用堿液噴淋至填料層,酸堿中和吸收原理。
- 無錫泛普環保有限公司
- 電話:133 7621 7639
- 傳真:0510-8783 1051
- 郵箱:
- 地址:無錫市宜興市高塍鎮環保城11幢16號


